Fastigheten

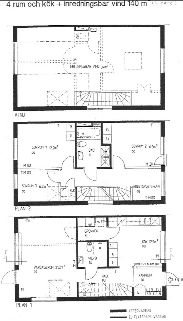
Föreningens fastighet består av 21 radhus, fördelade i tre radhuslängor. Husen byggdes år 2002 och varje radhus har tre våningar med en sammanlagd lägenhetsyta på 140 kvm. Arkitekt var Anders Bergkrantz. Till varje hus finns en "Bopärm" med teknisk och praktisk beskrivning av husen.

Sophantering

Varje hushåll har egen nyckel till föreningens Miljöstuga. Där finns kärl för sortering av förpackningar, matavfall och hushållssopor.

I samband med föreningens städdagar, vår och höst, brukar container för trädgårdsavfall och större avfall hyras.

Mer info finns under fliken Bostadsrätt – Miljöstuga.

Parkering

I dagsläget har föreningen 14 parkeringsplatser med motorvärmare. Det är kö till dessa och platserna fördelas efter boendetid. Anmäl ditt eventuella intresse för parkeringsplats till ordförande Birgitta André Åstrand.

Kontakta http://www.apcoa.se för information om parkering i området.